recherche immobilières sur mobile

Location Appartement Montelimar 2 pièces 45 m2 Drome (26200) - 609 € / mois

location appartement 2 pièces 45 m² région Drome

609 €/mois


Location Appartement 2 pièces MONTELIMAR 26200
Annonce Location 2 pièces Appartement Montelimar 26

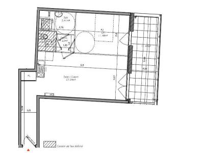
Description

A48 CARRE D'OR - COEUR MONTELIMAR - A SAISIR T2 AU DERNIER ETAGE AVEC SUP TERRASSE DE 11M2 EXPO SUD DANS UNE RESIDENCE RECENTE (2014) DE STANDING BBC - AU CALME - Magnifique séjour et cuisine US équipée (frigo et plaques) de 27m2, une chambre en sol parquet, SDE aménagée, parking privatif en sous sol sécurisé. Chauffage + eau chaude et froide inclus dans les charges. Consommation d'énergie totale entre 410 EUR et 590 EUR par an (prix moyens des énergies indexés sur les années 2021,2022,2023). Les informations sur les risques auxquels ce bien est exposé sont disponibles sur le site Géorisques : www. georisques. gouv. fr
Retour
Autres photos
Plan
Favoris

Contacter l'agence

CONFIANCE IMMOBILIER MONPLAISIR LOCATION
108, avenue des frères Lumière
69008 LYON

Toutes les annonces immobilières de CONFIANCE IMMOBILIER MONPLAISIR LOCATION
04.72.78.89.87


Recevoir des annonces similaires

Location à proximité de Montelimar