recherche immobilières sur mobile

Location Appartement Rueil-malmaison 1 pièce 26 m2 Hauts de Seine (92500) - 707 € / mois

location appartement 26 m² région Hauts de seine

707 €/mois


Location Appartement RUEIL-MALMAISON 92500
Annonce Location Appartement Rueil-malmaison 92
Louer Appartement 26 m2 Rueil-malmaison
Louer Appartement Rueil-malmaison Hauts de Seine

Description

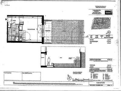
A RUEIL MALMAISON, dans la résidence CONFIDENCE, nous vous proposons un studio N°204 de 26,95 m² au rez-de-chaussée avec ascenseur. L'appartement se compose d'une entrée, d'un séjour de 17.78 m² avec coin cuisine équipée meubles, plaque et hotte donnant sur une terrasse de 5.85 m² et un jardin privatif de 24.56 m² , une salle d'eau et un WC. Une cave numéro 2 et un parking au sous sol numéro 13. Eau chaude et chauffage collectif gaz. Entretien des parties communes, entretien ascenseur et espaces verts communs, compris dans les provisions sur charges mensuelles et donnant lieu à une régularisation annuelle. Les honoraires de location TTC (à la charge du locataire) incluent le montant de rédaction des états des lieux facturé pour 80 euros TTC, après réalisation lors de l'entrée dans les lieux. Disponible le 30/04/2025. Pour plus de détail sur ce logement, vous pouvez consulter la fiche descriptive de ce bien, sur notre site internet AFEDIM Les informations sur les risques auxquels ce bien est exposé sont disponibles sur le site Géorisques :
Retour
Autres photos
Plan
Favoris

Contacter l'agence

CM-CIC GESTION IMMOBILIERE
2 Rond Point des Antons CS70304
44703 ORVAULT

Toutes les annonces immobilières de CM-CIC GESTION IMMOBILIERE
08.09.10.28.80 ou 08.10.00.69.36


Recevoir des annonces similaires

Location à proximité de Rueil-malmaison