recherche immobilières sur mobile

Location Appartement Saint-herblain 1 pièce 28 m2 Loire atlantique (44800) - 452 € / mois

location appartement 28 m² région Loire atlantique

452 €/mois


Location Appartement SAINT-HERBLAIN 44800
Annonce Location Appartement Saint-herblain 44
Louer Appartement 28 m2 Saint-herblain
Louer Appartement Saint-herblain Loire atlantique
Louer Appartement Saint-herblain 452 euros

Description

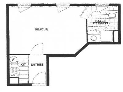
ST HERBLAIN. En coeur de bourg, Studio comprenant un séjour sur parquet, un espace cuisine séparé, aménagé et équipé de 2 plaques et d'un frigo, une salle d'eau avec wc. Les informations sur les risques auxquels ce bien est exposé sont disponibles sur le site Géorisques :
Retour
Autres photos
Plan
Favoris

Contacter l'agence

votre agent immobilier CABINET THIERRY (NANTES 44000)
CABINET THIERRY
du Couedic
44000 NANTES
Nous parlons :

Toutes les annonces immobilières de CABINET THIERRY
02.40.47.94.43


Recevoir des annonces similaires

Location à proximité de Saint-herblain