recherche immobilières sur mobile

Location Appartement Saran 2 pièces 43 m2 Loiret (45770) - 587 € / mois

location appartement 2 pièces 43 m² région Loiret

587 €/mois


Location Appartement 2 pièces SARAN 45770
Annonce Location 2 pièces Appartement Saran 45

Description

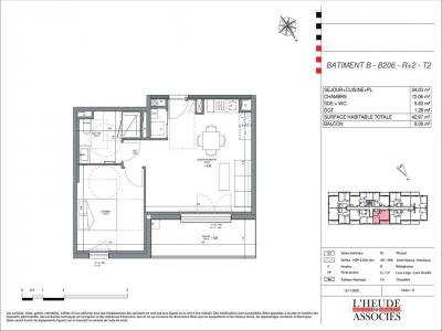
SARAN - Dans la résidence SYMBIOSE, nous vous proposons un appartement T2 n°B206 de 43.03m². Situé au 2e étage du bâtiment B, il comprend un séjour de 24.03m², une cuisine ouverte donnant sur un balcon de 8.07m², une chambre de 12.10m², une salle d'eau avec WC. Chauffage et eau chaude individuels au gaz. Au sous-sol, un emplacement de stationnement n°32.Entretien parties communes, entretien ascenseur et espaces verts communs, compris dans les provisions sur charges mensuelles et donnant lieu à une régularisation annuelle. Les honoraires de location TTC (à la charge du locataire) incluent le montant de rédaction des états des lieux facturé pour 129 euros TTC, après réalisation lors de l'entrée dans les lieux. Disponible le 30/08/2025. Pour plus de détails sur ce logement, vous pouvez consulter la fiche descriptive de ce bien, sur notre site AFEDIM. Les informations sur les risques auxquels ce bien est exposé sont disponibles sur le site Géorisques :
Retour
Autres photos
Plan
Favoris

Contacter l'agence

CM-CIC GESTION IMMOBILIERE
2 Rond Point des Antons CS70304
44703 ORVAULT

Toutes les annonces immobilières de CM-CIC GESTION IMMOBILIERE
08.09.10.28.80 ou 08.10.00.69.36


Recevoir des annonces similaires

Location à proximité de Saran