recherche immobilières sur mobile

Location Appartement Mulhouse 2 pièces 42 m2 Haut rhin (68100) - 517 € / mois

location appartement 2 pièces 42 m² région Haut rhin

517 €/mois


Location Appartement 2 pièces MULHOUSE 68100
Annonce Location 2 pièces Appartement Mulhouse 68
Louer Appartement 42 m2 Mulhouse

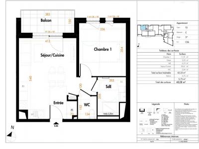
Description

A MULHOUSE, dans la résidence neuve GRAND ANGLE, nous vous proposons ce T2 de 42.33m² situé au 3ème étage avec ascenseur du bâtiment C. Il se compose d'une entrée avec placard, d'un séjour-cuisine avec accès au balcon de 5.75m², salle d'eau, WC séparé ainsi que d'une chambre de 11.91m². Au sous-sol un parking intérieur de 13m² n°48. Chauffage et eau chaude collectif au gaz. Entretien parties communes, entretien ascenseur, compris dans les provisions sur charges mensuelles et donnant lieu à une régularisation annuelle. Les honoraires de location TTC (à la charge du locataire) incluent le montant de rédaction des états des lieux facturé pour 126 euros TTC, après réalisation lors de l'entrée dans les lieux. Plus de détails sur notre site AFEDIM. DPE à venir. Les informations sur les risques auxquels ce bien est exposé sont disponibles sur le site Géorisques :
Retour
Autres photos
Plan
Favoris

Contacter l'agence

CM - CIC GESTION IMMOBILIERE
2 rond point des AntonsBP70904
44703 ORVAULT

Toutes les annonces immobilières de CM - CIC GESTION IMMOBILIERE
08.09.10.28.80


Recevoir des annonces similaires

Location à proximité de Mulhouse