recherche immobilières sur mobile

Location Appartement Mulhouse 3 pièces 66 m2 Haut rhin (68100) - 807 € / mois

location appartement 3 pièces 66 m² 2 chambres région Haut rhin

807 €/mois


Location Appartement 3 pièces MULHOUSE 68100
Annonce Location 3 pièces Appartement Mulhouse 68

Description

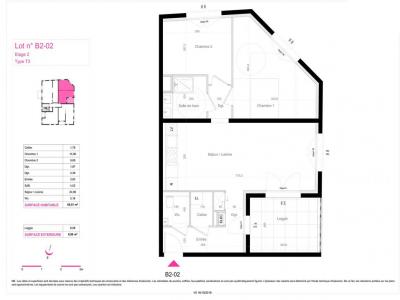
A MULHOUSE, dans la résidence neuve CITYZEN 1, nous vous proposons un logement T3 N°B2-02 de 66.51 m² sis au 2eme étage. Il se compose d'une pièce de vie de 24.86 m² avec cuisine ouverte sur séjour et donnant sur une loggia de 8.98 m², une chambre de 14.96 m² et une autre de 9.66 m², une salle d'eau avec douche, meuble vasque et WC séparer. Parking N°PSS11. Eau froide individuelle. Chauffage et eau chaude en collectif gaz, entretien des parties communes et espaces verts communs, compris dans les provisions sur charges mensuelles et donnant lieu à une régularisation annuelle. Les honoraires de location TTC (à la charge du locataire) incluent le montant de rédaction des états des lieux facturé pour 199 euros TTC, après réalisation lors de l'entrée dans les lieux. Disponibilité le 30/10/2025. Plus de détails sur notre site AFEDIM. Les informations sur les risques auxquels ce bien est exposé sont disponibles sur le site Géorisques :
Retour
Autres photos
Plan
Favoris

Contacter l'agence

CM-CIC GESTION IMMOBILIERE
2 Rond Point des Antons CS70304
44703 ORVAULT

Toutes les annonces immobilières de CM-CIC GESTION IMMOBILIERE
08.09.10.28.80 ou 08.10.00.69.36


Recevoir des annonces similaires

Location à proximité de Mulhouse