recherche immobilières sur mobile

Location Appartement Marseille-3eme-arrondissement 4 pièces 71 m2 Bouches du Rhone (13003) - 893 € / mois

location appartement 4 pièces 71 m² 3 chambres région Bouches du rhone

893 €/mois


Location Appartement 4 pièces MARSEILLE-3EME-ARRONDISSEMENT 13003
Annonce Location 4 pièces Appartement Marseille-3eme-arrondissement 13
Louer Appartement 71 m2 Marseille-3eme-arrondissement

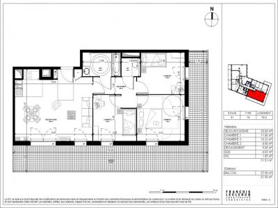
Description

C'est ici, dans la résidence "Les Docks Libres 2" que nous vous proposons un T4 de 71.51m² situé au 1er étage avec ascenseur. Il se compose d'une pièce de vie de 28,09m² avec coin cuisine ouverte sur un grand balcon de 37.56, de trois chambres, d'une salle de bains, d'un WC séparé et d'un dégagement. Au sous-sol un parking n°9661. Eau chaude et chauffage (individuel). Entretien parties communes, entretien ascenseur et espaces verts communs, compris dans les provisions sur charges mensuelles et donnant lieu à une régularisation annuelle. Les honoraires de location TTC (à la charge du locataire) incluent le montant de rédaction des états des lieux facturé pour 214euros TTC, après réalisation lors de l'entrée dans les lieux. Disponible le 23/10/2025. Pour plus de détails sur ce logement, vous pouvez consulter la fiche descriptive de ce bien, sur votre site internet AFEDIM. Les informations sur les risques auxquels ce bien est exposé sont disponibles sur le site Géorisques :
Retour
Autres photos
Plan
Favoris

Contacter l'agence

CM - CIC GESTION IMMOBILIERE
2 rond point des AntonsBP70904
44703 ORVAULT

Toutes les annonces immobilières de CM - CIC GESTION IMMOBILIERE
08.09.10.28.80


Recevoir des annonces similaires

Location à proximité de Marseille-3eme-arrondissement