recherche immobilières sur mobile

Location Appartement Thionville 2 pièces 43 m2 Moselle (57100) - 581 € / mois

location appartement 2 pièces 43 m² région Moselle

581 €/mois


Location Appartement 2 pièces THIONVILLE 57100
Annonce Location 2 pièces Appartement Thionville 57

Description

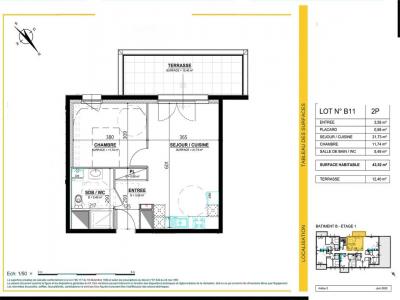
THIONVILLE, dans la résidence neuve à taille humaine DOMAINE DE DYANE qui profite d'un emplacement de choix proche du centre-ville, nous vous proposons un T2 n°B11 d'environ 43.52m² situé au 1er étage avec ascenseur, comprenant : une entrée avec placard, une pièce de vie de 21.73m² avec accès à une terrasse de 12.40m², une chambre de 11.74m², salle d'eau avec wc. Une place de parking extérieure n°P21 et une cave n°CB4 complètent le bien. Chauffage individuel au gaz. Entretien parties communes, entretien ascenseur et espaces verts communs, compris dans les provisions sur charges mensuelles et donnant lieu à une régularisation annuelle. Les honoraires de location TTC (à la charge du locataire) incluent le montant de rédaction des états des lieux facturé pour 130 euros TTC, après réalisation lors de l'entrée dans les lieux. Pour plus de détails sur ce logement sur notre site internet AFEDIM. DPE à venir - logement en cours de construction Les informations sur les risques auxquels ce bien est exposé sont disponibles sur le site Géorisques :
Retour
Autres photos
Plan
Favoris

Contacter l'agence

CM - CIC GESTION IMMOBILIERE
2 rond point des AntonsBP70904
44703 ORVAULT

Toutes les annonces immobilières de CM - CIC GESTION IMMOBILIERE
08.09.10.28.80


Recevoir des annonces similaires

Location à proximité de Thionville