recherche immobilières sur mobile

Location Appartement Olonne-sur-mer 2 pièces 44 m2 Vendee (85340) - 674 € / mois

location appartement 2 pièces 44 m² région Vendee

674 €/mois


Location Appartement 2 pièces OLONNE-SUR-MER 85340
Annonce Location 2 pièces Appartement Olonne-sur-mer 85

Description

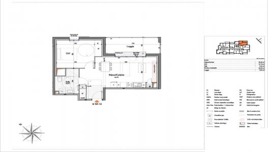
Aux Sables d'Olonne dans la résidence neuve Les terrasses de Savary, nous vous proposons un appartement T2 de 44.82 m² situé a 1er étage. Il se compose d'un séjour/cuisine de 26.5 m², d'une salle d'eau avec wc de 5.54 m², d'une chambre de 12.78 m² et d'une loggia de 9.83m². Parking n°22. Chauffage et eau chaude individuel gaz. Eau froide, entretien parties communes, ascenseur et espaces verts communs, compris dans les provisions sur charges mensuelles et donnant lieu à une régularisation annuelle. Le montant des honoraires mentionné inclut le montant des honoraires de location (visite, constitution dossier, bail) TTC et le montant des honoraires de rédaction des états des lieux facturé pour 134 euros TTC, après réalisation, lors de l'entrée dans les lieux. Pour plus d'information, nous vous invitons à consulter notre site AFEDIM. Logement en construction, DPE à venir. Les informations sur les risques auxquels ce bien est exposé sont disponibles sur le site Géorisques :
Retour
Autres photos
Plan
Favoris

Contacter l'agence

CM - CIC GESTION IMMOBILIERE
2 rond point des AntonsBP70904
44703 ORVAULT

Toutes les annonces immobilières de CM - CIC GESTION IMMOBILIERE
08.09.10.28.80


Recevoir des annonces similaires

Location à proximité de Olonne-sur-mer