recherche immobilières sur mobile

Location Appartement Longvic 3 pièces 62 m2 Cote d'or (21600) - 775 € / mois

location appartement 3 pièces 62 m² 2 chambres région Cote d'or

775 €/mois


Location Appartement 3 pièces LONGVIC 21600
Annonce Location 3 pièces Appartement Longvic 21
Louer Appartement 62 m2 Longvic

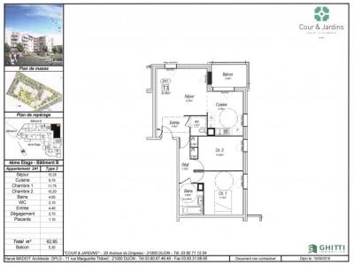
Description

A LONGVIC, dans la résidence neuve COUR ET JARDINS, nous vous proposons un appartement T3 N°B241 de 62.85 m² situé au 4ème étage avec ascenseur. Il se compose d'une pièce de vie avec cuisine aménagée et équipée ouverte sur séjour et donnant sur un balcon de 5,30 m², une chambre de 11.75 m² avec placards, une chambre de 10.20m², une salle d'eau et WC. Au sous sol, une cave n°CB2 et un parking N°A53. Eau froide individuelle. Chauffage et eau chaude (collectif gaz avec abonnement individuel). Entretien des parties communes, entretien ascenseur et espaces verts communs, compris dans les provisions sur charges mensuelles et donnant lieu à une régularisation annuelle. Logement disponible immédiatement. Les honoraires de location TTC (à la charge du locataire) incluent le montant de rédaction des états des lieux facturé pour 188.00 euros TTC, après réalisation lors de l'entrée dans les lieux. Plus de détails sur afedim-location.fr. Les informations sur les risques auxquels ce bien est exposé sont disponibles sur le site Géorisques :
Retour
Autres photos
Plan
Favoris

Contacter l'agence

CM - CIC GESTION IMMOBILIERE
2 rond point des AntonsBP70904
44703 ORVAULT

Toutes les annonces immobilières de CM - CIC GESTION IMMOBILIERE
08.09.10.28.80


Recevoir des annonces similaires

Location à proximité de Longvic