recherche immobilières sur mobile

Location Appartement Perpignan 3 pièces 61 m2 Pyrenees orientales (66000) - 692 € / mois

location appartement 3 pièces 61 m² 2 chambres région Pyrenees orientales

692 €/mois


Location Appartement 3 pièces PERPIGNAN 66000
Annonce Location 3 pièces Appartement Perpignan 66

Description

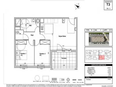
A PERPIGNAN, nous vous proposons dans la résidence récente LE JASPE, un appartement T3 n°A12 de 61.31m² disposant d'un balcon de 10.54m². Situé au 3ème étage, il comprend un séjour de 25.97m² avec espace cuisine, deux chambres avec placard de 12.22m² et 10.20m², une salle d'eau avec meuble vasque, douche, WC séparés. En extérieur, un parking n°18 et un au RDC du bât A, un parking n°33. Chauffage individuel électrique, eau chaude par pompe à chaleur collective et ballon thermodynamique individuel. Entretien parties communes, ascenseur et espaces verts, compris dans les provisions sur charges mensuelles et donnant lieu à une régularisation annuelle. Les honoraires de location TTC (à la charge du locataire) incluent le montant de rédaction des états des lieux facturé pour 183 euros TTC, après réalisation lors de l'entrée dans les lieux. Pour plus d'informations sur ce bien, consultez notre site AFEDIM. Les informations sur les risques auxquels ce bien est exposé sont disponibles sur le site Géorisques :
Retour
Autres photos
Plan
Favoris

Contacter l'agence

CM-CIC GESTION IMMOBILIERE
2 Rond Point des Antons CS70304
44703 ORVAULT

Toutes les annonces immobilières de CM-CIC GESTION IMMOBILIERE
08.09.10.28.80 ou 08.10.00.69.36


Recevoir des annonces similaires

Location à proximité de Perpignan