recherche immobilières sur mobile

Location Appartement Illkirch-graffenstaden 2 pièces 48 m2 Bas rhin (67400) - 704 € / mois

location appartement 2 pièces 48 m² région Bas rhin

704 €/mois


Location Appartement 2 pièces ILLKIRCH-GRAFFENSTADEN 67400
Annonce Location 2 pièces Appartement Illkirch-graffenstaden 67

Description

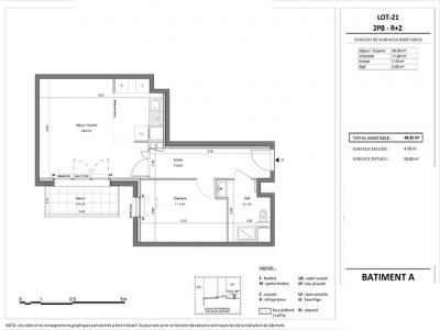
ILLKIRCH GRAFFENSTADEN. RESIDENCE GRAFIK*. Nous vous proposons un appartement T2 d'une superficie de 48.35m² situé au 2ème étage avec ascenseur, comprenant : Une entrée avec placard, un séjour d'environ 24.39m² avec coin cuisine aménagé/équipé (évier simple bac, hotte, plaque de cuisson vitrocéramique, four électrique). Avec un balcon de 4.70m², une chambre, une salle d'eau avec WC. Un parking intérieur n°40. Eau chaude et chauffage collectif. Entretien parties communes, entretien ascenseur et espaces verts communs, compris dans les provisions sur charges mensuelles et donnant lieu à une régularisation annuelle. Les honoraires de location TTC (à la charge du locataire) incluent le montant de rédaction des états des lieux facturé pour 145 euros TTC, après réalisation lors de l'entrée dans les lieux. Disponible le 09/08/2025. Pour plus de détails sur ce logement, vous pouvez consulter la fiche descriptive de ce bien, sur votre site internet AFEDIM Les informations sur les risques auxquels ce bien est exposé sont disponibles sur le site Géorisques :
Retour
Autres photos
Plan
Favoris

Contacter l'agence

CM-CIC GESTION IMMOBILIERE
2 Rond Point des Antons CS70304
44703 ORVAULT

Toutes les annonces immobilières de CM-CIC GESTION IMMOBILIERE
08.09.10.28.80 ou 08.10.00.69.36


Recevoir des annonces similaires

Location à proximité de Illkirch-graffenstaden