recherche immobilières sur mobile

Location Appartement Strasbourg 2 pièces 47 m2 Bas rhin (67100) - 789 € / mois

location appartement 2 pièces 47 m² région Bas rhin

789 €/mois


Location Appartement 2 pièces STRASBOURG 67100
Annonce Location 2 pièces Appartement Strasbourg 67
Louer Appartement 47 m2 Strasbourg
Louer Appartement Strasbourg Bas rhin

Description

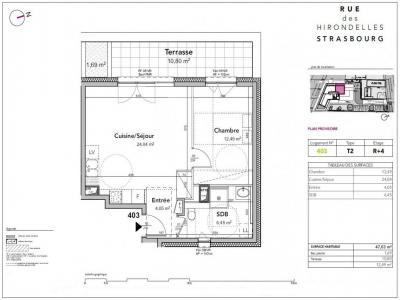
STRASBOURG, résidence HIRONDEAU, nous vous proposons un appartement T2 (n°403), d'une superficie de 47,03 m² situé au 4ème étage avec ascenseur. Il se compose d'une entrée, d'un séjour-cuisine de 24.04 m² donnant sur une terrasse de 12.49 m² orienté Ouest, d'une salle d'eau avec WC et d'une chambre de 12,49 m². Un emplacement de garage n°1 est également à votre disposition. Chauffage, eau chaude, eau froide, Entretien parties communes, ascenseur et espaces verts communs, compris dans les provisions sur charges mensuelles et donnant lieu à une régularisation annuelle. Les honoraires de location sont facturés directement au locataire par le partenaire pour 470E TTC. Quant aux honoraires de rédaction des états des lieux, ils sont facturés par AFEDIM Gestion pour 141E TTC, après réalisation, lors de l'entrée dans les lieux. Plus de détails sur notre site internet AFEDIM. Les informations sur les risques auxquels ce bien est exposé sont disponibles sur le site Géorisques :
Retour
Autres photos
Plan
Favoris

Contacter l'agence

CM-CIC GESTION IMMOBILIERE
2 Rond Point des Antons CS70304
44703 ORVAULT

Toutes les annonces immobilières de CM-CIC GESTION IMMOBILIERE
08.09.10.28.80 ou 08.10.00.69.36


Recevoir des annonces similaires

Location à proximité de Strasbourg