recherche immobilières sur mobile

Location Appartement Lyon-3eme-arrondissement 2 pièces 46 m2 Rhone (69003) - 760 € / mois

location appartement 2 pièces 46 m² région Rhone

760 €/mois


Location Appartement 2 pièces LYON-3EME-ARRONDISSEMENT 69003
Annonce Location 2 pièces Appartement Lyon-3eme-arrondissement 69

Description

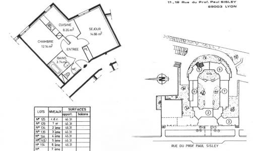
LYON 3 / PARC SISLEY - TRAMWAY DAUPHINE LACASSAGNE T2 de 46,45 m² situé au 5ème étage avec ascenseur, dans un bel immeuble récent avec espaces verts, à deux pas du Parc SILSLEY. Il se compose d'un séjour, d'une cuisine, d'une chambre, d'une salle de bains et WC indépendant. A cela s'ajoute un parking en sous-sol pour 60 E/mois. Disponibilité immédiate Chauffage individuel électrique Eau froide collective Eau chaude individuelle électrique Loyer hors charges : 700,00 E Provision sur charges : 60,00 E Dépôt de garantie : 700,00 E Honoraires de location : 464,50 E Frais d'état des lieux : 139,35 E Zone soumise à l'encadrement des loyers Loyer médian : 13,60 E/m² Loyer majoré : 16,30E/m² Complément de loyer (inclus dans le loyer) : 0 E Les informations sur les risques auxquels ce bien est exposé sont disponibles sur le site Géorisques: Les informations sur les risques auxquels ce bien est exposé sont disponibles sur le site Géorisques :
Retour
Autres photos
Plan
Favoris

Contacter l'agence

CILA‰AD
93 rue Vendôme
69006 LYON

Toutes les annonces immobilières de CILA‰AD
06.75.78.12.62 ou 09.77.89.32.62


Recevoir des annonces similaires

Location à proximité de Lyon-3eme-arrondissement