recherche immobilières sur mobile

Location Appartement Clermont-ferrand 2 pièces 44 m2 Puy de dome (63000) - 680 € / mois

location appartement 2 pièces 44 m² région Puy de dome

680 €/mois


Location Appartement 2 pièces CLERMONT-FERRAND 63000
Annonce Location 2 pièces Appartement Clermont-ferrand 63

Description

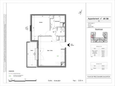
CLERMONT FERRAND, dans la résidence FABRIKS DE MAI, nous vous proposons un appartement T2 (A1 54), d'une superficie de 44,94 m² situé au 5ème étage. Il se compose d'une entrée avec placard, d'un séjour-cuisine de 23,45 m² donnant sur un balcon de 7,29 m² exposé ouest, d'une chambre de 12,93 m², d'une salle d'eau et WC séparé. Un garage à disposition. Chauffage urbain. Eau chaude, eau froide. Entretien parties communes, entretien ascenseur et espaces verts communs, compris dans les provisions sur charges mensuelles et donnant lieu à une régularisation annuelle. Les honoraires de location TTC (à la charge du locataire) incluent le montant de rédaction des états des lieux facturé pour 134 euros TTC, après réalisation lors de l'entrée dans les lieux. Pour plus de détails sur ce logement, vous pouvez consulter la fiche descriptive de ce bien, sur votre site internet AFEDIM Les informations sur les risques auxquels ce bien est exposé sont disponibles sur le site Géorisques :
Retour
Autres photos
Plan
Favoris

Contacter l'agence

CM-CIC GESTION IMMOBILIERE
2 Rond Point des Antons CS70304
44703 ORVAULT

Toutes les annonces immobilières de CM-CIC GESTION IMMOBILIERE
08.09.10.28.80 ou 08.10.00.69.36


Recevoir des annonces similaires

Location à proximité de Clermont-ferrand