recherche immobilières sur mobile

Location Appartement Illkirch-graffenstaden 2 pièces 42 m2 Bas rhin (67400) - 698 € / mois

location appartement 2 pièces 42 m² région Bas rhin

698 €/mois


Location Appartement 2 pièces ILLKIRCH-GRAFFENSTADEN 67400
Annonce Location 2 pièces Appartement Illkirch-graffenstaden 67
Louer Appartement 42 m2 Illkirch-graffenstaden
Louer Appartement Illkirch-graffenstaden Bas rhin
Louer Appartement Illkirch-graffenstaden 698 euros

Description

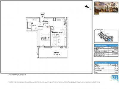
ILLKIRCH GRAFFENSTADEN Emplacement idéal entre le campus à l'est, le centre-ville et le lycée le Corbusier à l'ouest. Nous vous proposons un appartement de type 2 (n°B17) de 42.77 m² situé au 1er étage avec ascenseur. Entrée avec placard, pièce de vie lumineuse avec espace cuisine aménagée donnant sur un balcon de 13.42 m², chambre et salle de bain avec WC. Une place de parking en sous-sol numéro 1161. Disponibilité prévisionnelle 15/11/2020. Chauffage, eau froide et eau chaude par le réseau urbain collectif, entretien parties communes, entretien ascenseur et espaces verts communs, compris dans les provisions sur charges. Les honoraires de location TTC (à la charge du locataire) incluent le montant de rédaction des états des lieux facturé pour 131,00 euros TTC, après réalisation lors de l'entrée dans les lieux. Les informations sur les risques auxquels ce bien est exposé sont disponibles sur le site Géorisques :
Retour
Autres photos
Plan
Favoris

Contacter l'agence

CM-CIC GESTION IMMOBILIERE
2 Rond Point des Antons CS70304
44703 ORVAULT

Toutes les annonces immobilières de CM-CIC GESTION IMMOBILIERE
08.09.10.28.80 ou 08.10.00.69.36


Recevoir des annonces similaires

Location à proximité de Illkirch-graffenstaden