recherche immobilières sur mobile

Location Appartement Chenove 2 pièces 47 m2 Cote d'or (21300) - 615 € / mois

location appartement 2 pièces 47 m² région Cote d'or

615 €/mois


Location Appartement 2 pièces CHENOVE 21300
Annonce Location 2 pièces Appartement Chenove 21

Description

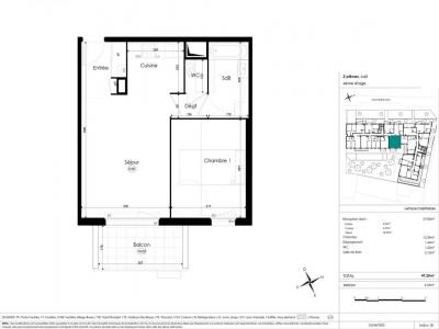
A CHENOVE, dans la résidence neuve CAP' CANAL, nous vous proposons un appartement T2 de 47.25m² situé au quatrième étage avec ascenseur. Il se compose d'une entrée avec placard, d'une pièce de vie de 22m² avec cuisine ouverte et donnant sur un balcon de 6m², d'une chambre de 12m², d'une salle de bain et d'un WC séparé. Une place de parking N°86 est disponible avec le lot. Chauffage et eau chaude individuel gaz. Entretien parties communes, entretien ascenseur, compris dans les provisions sur charges mensuelles et donnant lieu à une régularisation annuelle. Les honoraires de location TTC (à la charge du locataire) incluent le montant de rédaction des états des lieux facturé pour 141 euros TTC, après réalisation lors de l'entrée dans les lieux. Disponibilité prévisionnelle courant Octobre 2025. Plus de détails sur notre site AFEDIM. Logement neuf en cours de construction - DPE à venir. Les informations sur les risques auxquels ce bien est exposé sont disponibles sur le site Géorisques :
Retour
Autres photos
Plan
Favoris

Contacter l'agence

CM - CIC GESTION IMMOBILIERE
2 rond point des AntonsBP70904
44703 ORVAULT

Toutes les annonces immobilières de CM - CIC GESTION IMMOBILIERE
08.09.10.28.80


Recevoir des annonces similaires

Location à proximité de Chenove