recherche immobilières sur mobile

Location Appartement Villeneuve-d'ascq 3 pièces 68 m2 Nord (59491) - 949 € / mois

location appartement 3 pièces 68 m² 2 chambres région Nord

949 €/mois


Location Appartement 3 pièces VILLENEUVE-D'ASCQ 59491
Annonce Location 3 pièces Appartement Villeneuve-d'ascq 59

Description

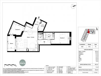
VILLENEUVE-D'ASCQ, dans la résidence neuve GREEN LINE , à proximité de Lille, des commodités urbaines et confort d'un quotidien serein au vert, nous vous proposons un appartement T3 n°A201 d'environ 68.50m² situé au 2e étage avec ascenseur, comprenant : une entrée avec placard, une pièce de vie de 30.20m² et donnant accès à un balcon de 7.40m², deux chambres, salle de bain équipée avec wc séparé. Une place de parking intérieure n°38 complète le bien. Chauffage collectif par pompe à chaleur. Entretien parties communes, ascenseur et espaces verts communs, compris dans les provisions sur charges mensuelles et donnant lieu à une régularisation annuelle. Les honoraires de location TTC (à la charge du locataire) incluent le montant de rédaction des états des lieux facturé pour 205 euros TTC, après réalisation lors de l'entrée dans les lieux. Pour plus de détails sur ce logement, vous pouvez consulter la fiche descriptive de ce bien, sur notre site internet AFEDIM. Les informations sur les risques auxquels ce bien est exposé sont disponibles sur le site Géorisques :
Retour
Autres photos
Plan
Favoris

Contacter l'agence

CM - CIC GESTION IMMOBILIERE
2 rond point des AntonsBP70904
44703 ORVAULT

Toutes les annonces immobilières de CM - CIC GESTION IMMOBILIERE
08.09.10.28.80


Recevoir des annonces similaires

Location à proximité de Villeneuve-d'ascq