recherche immobilières sur mobile

Location Appartement Albertville 1 pièce 32 m2 Savoie (73200) - 580 € / mois

location appartement 32 m² région Savoie

580 €/mois


Location Appartement ALBERTVILLE 73200

Description

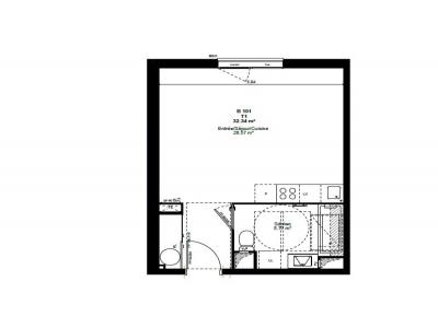
B101 OXYGENE - A VOIR ABSOLUMENT BEAU T1 DE 32M² DANS UNE RESIDENCE NEUVE BBC DE STANDING, L'appartement est composé d'une belle pièce de vie, un coin nuit, cuisine équipée et aménagée (meubles haut et bas et plaque de cuisson), une salle de bain aménagée et sèche serviette. Une place de parking en sous-sol. Chauffage individuel électrique. Visiophone. Consommation d'énergie totale entre 460-670EUR par an (prix moyens des énergies indexés au 2021.2022.2023). Les informations sur les risques auxquels ce bien est exposé sont disponibles sur le site Géorisques : www. georisques. gouv. fr
Retour
Autres photos
Plan
Favoris

Contacter l'agence

CONFIANCE IMMOBILIER MONPLAISIR LOCATION
108, avenue des frères Lumière
69008 LYON

Toutes les annonces immobilières de CONFIANCE IMMOBILIER MONPLAISIR LOCATION
04.72.78.89.87


Recevoir des annonces similaires

Location à proximité de Albertville