recherche immobilières sur mobile

Location Appartement Saint-hilaire-de-riez 3 pièces 62 m2 Vendee (85270) - 800 € / mois

location appartement 3 pièces 62 m² 2 chambres région Vendee

800 €/mois


Location Appartement 3 pièces SAINT-HILAIRE-DE-RIEZ 85270
Annonce Location 3 pièces Appartement Saint-hilaire-de-riez 85

Description

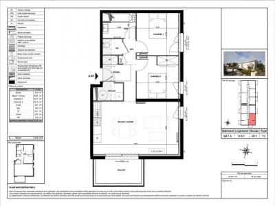
A SAINT HILAIRE DE RIEZ, dans la résidence neuve JARDINS D ILARIS, nous vous proposons un logement T3 N°107 de 62.07m² au 1er étage. Il se compose d'une entrée avec placard et cellier, un séjour/cuisine donnant sur un balcon de 6.48m², deux chambres, une salle de bains et un WC. A l'extérieur, un emplacement de stationnement. Eau chaude et chauffage individuels électriques. Entretien des parties communes et espaces verts communs, compris dans les provisions sur charges mensuelles et donnant lieu à une régularisation annuelle. Les honoraires de location TTC (à la charge du locataire) incluent le montant de rédaction des états des lieux facturé pour 186 euros TTC, après réalisation lors de l'entrée dans les lieux. Disponibilité prévisionnelle au 27/12/2025. Pour plus de détail sur ce logement, vous pouvez consulter la fiche descriptive de ce bien, sur notre site internet AFEDIM. Logement neuf en cours de construction - DPE à venir Les informations sur les risques auxquels ce bien est exposé sont disponibles sur le site Géorisques :
Retour
Autres photos
Plan
Favoris

Contacter l'agence

CM - CIC GESTION IMMOBILIERE
2 rond point des AntonsBP70904
44703 ORVAULT

Toutes les annonces immobilières de CM - CIC GESTION IMMOBILIERE
08.09.10.28.80


Recevoir des annonces similaires

Location à proximité de Saint-hilaire-de-riez