recherche immobilières sur mobile

Location Commerce Bonnac-la-cote 4 pièces 231 m2 Haute vienne (87270) - 8400 € / an

location commerce 4 pièces 231 m² région Haute vienne

8 400 €/an


Location Commerce BONNAC-LA-COTE 87270
Annonce Location Commerce Bonnac-la-cote 87
Louer Commerce 231 m2 Bonnac-la-cote
Louer Commerce Bonnac-la-cote Haute vienne

Description

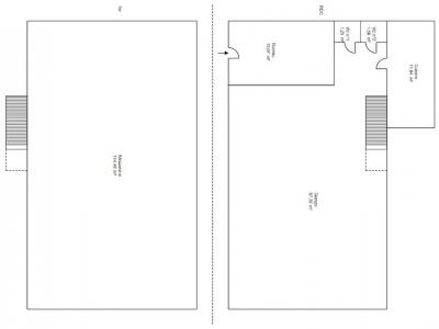
(Référence : EV-2493) Local d'activité à Bonnac-la-Côte, secteur Maison Rouge à côté de l'entrée de l'A20. Ce local se compose : - d'un espace bureau/accueil, - d'un grand garage/dépôt avec un accès vers l'extérieur, - d'une pièce annexe (cuisine), - d'une grande mezzanine, - de 2 WC. Disponible tout de suite. Loyer : 700 euros Honoraires : 1680 euros (état des lieux inclus) Dépôt de garantie : 2100 euros Les informations sur les risques auxquels ce bien est exposé sont disponibles sur le site Géorisques
Retour
Autres photos
Plan
Favoris

Contacter l'agence

AM GESTION
2 Avenue du Général de Gaulle
87240 AMBAZAC

Toutes les annonces immobilières de AM GESTION
05.87.31.00.13


Recevoir des annonces similaires

Location à proximité de Bonnac-la-cote