recherche immobilières sur mobile

Location Appartement Mulhouse 2 pièces 53 m2 Haut rhin (68100) - 595 € / mois

location appartement 2 pièces 53 m² région Haut rhin

595 €/mois


Location Appartement 2 pièces MULHOUSE 68100
Annonce Location 2 pièces Appartement Mulhouse 68

Description

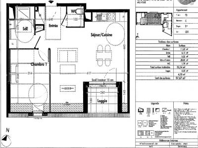
A MULHOUSE, dans la résidence neuve GRAND ANGLE, nous vous proposons ce T2 de 53.34 m² situé au 5ème étage avec ascenseur du bâtiment C. Il se compose d'une entrée avec placard, d'un séjour - cuisine avec accès à une loggia de 4.33 m², salle d'eau, WC séparé ainsi que d'une chambre de 11.69 m². Au sous-sol un parking intérieur n°74. Chauffage et eau chaude collectif au gaz. Entretien parties communes, entretien ascenseur, compris dans les provisions sur charges mensuelles et donnant lieu à une régularisation annuelle. Les honoraires de location TTC (à la charge du locataire) incluent le montant de rédaction des états des lieux facturé pour 160 euros TTC, après réalisation lors de l'entrée dans les lieux. Disponibilité immédiate. DPE à venir. Plus de détails sur notre site AFEDIM. Les informations sur les risques auxquels ce bien est exposé sont disponibles sur le site Géorisques :
Retour
Autres photos
Plan
Favoris

Contacter l'agence

CM-CIC GESTION IMMOBILIERE
2 Rond Point des Antons CS70304
44703 ORVAULT

Toutes les annonces immobilières de CM-CIC GESTION IMMOBILIERE
08.09.10.28.80 ou 08.10.00.69.36


Recevoir des annonces similaires

Location à proximité de Mulhouse