recherche immobilières sur mobile

Location Commerce Arbin 205 m2 Savoie (73800) - 20400 € / an

location commerce 205 m² région Savoie

20 400 €/an


Location Commerce ARBIN 73800
Annonce Location Commerce Arbin 73
Louer Commerce 205 m2 Arbin
Louer Commerce Arbin Savoie

Description

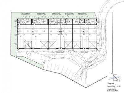
Local d'activité neuf sur la commune d'Arbin, d'une surface totale de 205 m² comprenant 157 m² au sol et 48 m² en mezzanine - loué brut, fluide en attente-aménagements à prévoir-site bitumé et clos par un portail motorisé grande ouverture-accès PL-dalle béton charge lourde d'une épaisseur de 25 cm-hauteur sous faîtage de 6,45 m-environ 30 places de stationnements extérieurs pour l'ensemble des lots. - Type de bail : Commercial - Durée : 3/6/9 ans - Préavis : 6 mois - Fiscalité : TVA - Indice : ILC - Indexation : Annuelle, date prise effet - Dépôt de garantie : 2 mois HT/HC - Loyers et charges : Mensuels et d'avance
Retour
Autres photos
Plan
Favoris

Contacter l'agence

A-S CONSULTANTS
786 route de Lyon
07430 DAVEZIEUX

Toutes les annonces immobilières de A-S CONSULTANTS
04.58.17.02.64 ou 04.75.32.19.79


Recevoir des annonces similaires

Location à proximité de Arbin