recherche immobilières sur mobile

Appartement à vendre Toulouse 3 pièces 57 m2 Haute garonne (31200) - 104500 €

vente appartement 3 pièces 57 m² 2 chambres région Haute garonne

104 500 €


Vente Appartement 3 pièces TOULOUSE 31200
Annonce Vente 3 pièces Appartement Toulouse 31
Acheter Appartement 57 m2 Toulouse
Acheter Appartement Toulouse Haute garonne
Acheter Appartement Toulouse 104500 euros

Description

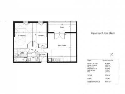
Idéal investisseur - Forom® Immobilier Forom Immobilier vous propose cet appartement T3 d'une surface d'environ 57,40 m² au 2ème étage situé dans une résidence sécurisée sur la commune de Toulouse. Le logement dispose d'un séjour donnant sur une loggia, une cuisine, deux chambres, une salle de bains, un WC et une place de parking. o Loyer mensuel : 629,51E / mois soit 554,51E HC + 75E CL o Rentabilité : 7,22% brute o Charges : 112,23E / mois o Taxe foncière : 1 115E / an o Date de fin de bail : 15/03/2027 o DPE : C o Nombre de lots : 53 o Honoraires charge vendeur
Retour
Autres photos
Plan
Favoris

Contacter l'agence

BONNEFOY IMMOBILIER
26 R Du Faubourg Bonnefoy
31000 TOULOUSE

Toutes les annonces immobilières de BONNEFOY IMMOBILIER
05.67.76.62.50


Recevoir des annonces similaires

Vente à proximité de Toulouse