vente appartement 3 pièces 60 m² 2 chambres région Haute garonne
88 000 €
Description
Spécial Investisseur - Forom® Immobilier
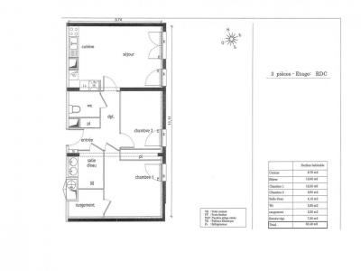
Appartement T3 en rez-de-chaussée d'environ 60,40 m² avec une rentabilité de 6,30% brute et 4,16% nette.
Le logement dispose d'un séjour, une cuisine, deux chambres, une salle de bains, un WC.
Loyer entièrement garanti et sécurisé avec un bail commercial, aucune contrainte de gestion, faibles charges.
C'est le produit idéal pour se constituer facilement un patrimoine immobilier.
o Loyer annuel HT : 5 550,88E / an soit 462,57E / mois
o Rentabilité : 6,30% brute et 4,16% nette !
o Charges : 46,52E / mois
o Taxe foncière : 1 330E / an
o Gestionnaire : Lokora (4/5) avec date de fin de bail le 31/12/2038
o Indexation selon l'indice IRL
o DPE : C
o Nombre de lots : 188
Les avantages
o Les loyers sont réglés que le logement soit occupé ou non (sans risque de vacances locatives ou d'impayés).
o Vous bénéficiez également d'avantages fiscaux lié au « LMNP amortissable », donnant une exonération d'impôt sur les revenus locatifs.
o Aucuns frais de gestion courante (le gestionnaire vous règle directement le loyer sans intermédiaire ni frais de gestion locative).
o Emplacement premium bien au-dessous du prix du marché.
La résidence
Située dans le quartier dynamique de Montaudran, la résidence bénéficie d'un accès rapide au métro (ligne B, station Montaudran à 13 min à pied) et est proche des campus universitaires, notamment l'Université Paul Sabatier. Commerces et services sont facilement accessibles, offrant un cadre idéal pour les étudiants.
Annonce Pro
Surface60 m2
Pièces3
Chambres2
SDB1
Construction2011
DPEC
GESA
CopropriétéOui
Référence18736112 - 3892-FOROM
Publiée le01/11/2025
Modifiée le17/01/2026
BarèmeVoir le barème des honoraires
Retour
Autres photos
Plan
Favoris
Contacter l'agence
BONNEFOY IMMOBILIER 26 R Du Faubourg Bonnefoy 31000 TOULOUSE
X FermerUtilisation des cookies En poursuivant votre navigation vous acceptez l'utilisation des cookies ou technologies similaires pour disposer de services et d'offres adaptés à vos centres d'intérêts Pour plus d'informations, gérer ou modifier les paramètres, cliquez ici