recherche immobilières sur mobile

Location Appartement Mulhouse 3 pièces 62 m2 Haut rhin (68100) - 729 € / mois

location appartement 3 pièces 62 m² 2 chambres région Haut rhin

729 €/mois


Location Appartement 3 pièces MULHOUSE 68100
Annonce Location 3 pièces Appartement Mulhouse 68
Louer Appartement 62 m2 Mulhouse
Louer Appartement Mulhouse Haut rhin

Description

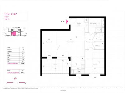
A MULHOUSE RESIDENCE CITYZEN 1. Nous vous proposons un appartement T3 d'une superficie de 62.96m² situé au 1er étage avec ascenseur, comprenant : Une entrée avec placard, un séjour d'environ 23,24m² avec coin cuisine sur un balcon de 9.99m², deux chambres de11.47m² et 10m² , une salle d'eau. WC séparés. Un cellier de 1.73m². Un garage nG35. Eau chaude et chauffage collectif. Entretien parties communes, entretien ascenseur et espaces verts communs, compris dans les provisions sur charges mensuelles et donnant lieu à une régularisation annuelle. Les honoraires de location TTC (à la charge du locataire) incluent le montant de rédaction des états des lieux facturé pour 188euros TTC, après réalisation lors de l'entrée dans les lieux. Disponible le 01/02/2026. Pour plus de détails sur ce logement, vous pouvez consulter la fiche descriptive de ce bien, sur votre site internet AFEDIM. Les informations sur les risques auxquels ce bien est exposé sont disponibles sur le site Géorisques :
Retour
Autres photos
Plan
Favoris

Contacter l'agence

CM-CIC GESTION IMMOBILIERE
2 Rond Point des Antons CS70304
44703 ORVAULT

Toutes les annonces immobilières de CM-CIC GESTION IMMOBILIERE
08.09.10.28.80 ou 08.10.00.69.36


Recevoir des annonces similaires

Location à proximité de Mulhouse