recherche immobilières sur mobile

Location Appartement Mulhouse 2 pièces 46 m2 Haut rhin (68100) - 600 € / mois

location appartement 2 pièces 46 m² région Haut rhin

600 €/mois


Location Appartement 2 pièces MULHOUSE 68100
Annonce Location 2 pièces Appartement Mulhouse 68

Description

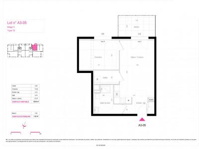
MULHOUSE - Dans la résidence CITYZEN, nous vous proposons un appartement T2 d'une superficie de 46m² situé au 3ème étage avec ascenseur, comprenant : Une entrée avec placard, un séjour d'environ 21m² avec coin cuisine aménagé/équipé (évier, hotte, four, plaque de cuisson), un balcon de 7m², une chambre, un cellier, une salle de bain avec WC. Eau chaude et chauffage collectif gaz. Entretien parties communes, entretien ascenseur et espaces verts communs, compris dans les provisions sur charges mensuelles et donnant lieu à une régularisation annuelle. Les honoraires de location TTC (à la charge du locataire) incluent le montant de rédaction des états des lieux facturé pour 138 euros TTC, après réalisation lors de l'entrée dans les lieux. Disponible le 01/09/2025. Pour plus de détails sur ce logement, vous pouvez consulter la fiche descriptive de ce bien, sur votre site internet AFEDIM Les informations sur les risques auxquels ce bien est exposé sont disponibles sur le site Géorisques :
Retour
Autres photos
Plan
Favoris

Contacter l'agence

CM-CIC GESTION IMMOBILIERE
2 Rond Point des Antons CS70304
44703 ORVAULT

Toutes les annonces immobilières de CM-CIC GESTION IMMOBILIERE
08.09.10.28.80 ou 08.10.00.69.36


Recevoir des annonces similaires

Location à proximité de Mulhouse