recherche immobilières sur mobile

Location Appartement Quetigny 3 pièces 67 m2 Cote d'or (21800) - 900 € / mois

location appartement 3 pièces 67 m² 2 chambres région Cote d'or

900 €/mois


Location Appartement 3 pièces QUETIGNY 21800
Annonce Location 3 pièces Appartement Quetigny 21

Description

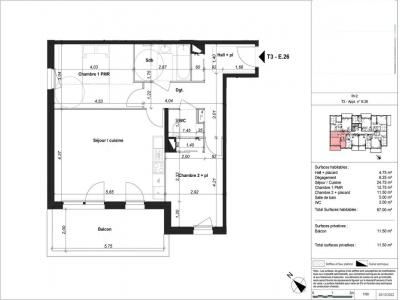
A QUETIGNY, dans la résidence neuve PATIO CENTRAL nous vous proposons ce T3 de 67m² au deuxième étage avec ascenseur. Il comprend une entrée avec placard, un séjour/cuisine aménagée équipée (four, plaque de cuisson, hotte, lave-vaisselle) donnant sur balcon de 11.50m², un dégagement desservant deux chambres dont une avec placard, une salle de bains et un WC. Eau chaude et chauffage collectifs urbain. Eau froide, eau chaude, chauffage, entretien parties communes, entretien ascenseur, compris dans les provisions sur charges mensuelles et donnant lieu à une régularisation annuelle. Les honoraires de location TTC (à la charge du locataire) incluent le montant de rédaction des états des lieux facturé pour 201 euros TTC, après réalisation lors de l'entrée dans les lieux. Disponibilité au 26/07/2025. Plus de détails sur notre site AFEDIM. Les informations sur les risques auxquels ce bien est exposé sont disponibles sur le site Géorisques :
Retour
Autres photos
Plan
Favoris

Contacter l'agence

CM-CIC GESTION IMMOBILIERE
2 Rond Point des Antons CS70304
44703 ORVAULT

Toutes les annonces immobilières de CM-CIC GESTION IMMOBILIERE
08.09.10.28.80 ou 08.10.00.69.36


Recevoir des annonces similaires

Location à proximité de Quetigny