recherche immobilières sur mobile

Location Appartement Saint-cyr-sur-loire 3 pièces 63 m2 Indre et loire (37540) - 838 € / mois

location appartement 3 pièces 63 m² 2 chambres région Indre et loire

838 €/mois


Location Appartement 3 pièces SAINT-CYR-SUR-LOIRE 37540
Annonce Location 3 pièces Appartement Saint-cyr-sur-loire 37
Louer Appartement 63 m2 Saint-cyr-sur-loire
Louer Appartement Saint-cyr-sur-loire Indre et loire

Description

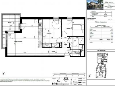
ST CYR SUR LOIRE, exceptionnel dans ce quartier résidentiel à proximité du centre de Tours, dans la résidence HARMONY , nous vous proposons un T3 de 63 m² environ n° B105, situé au 1er étage comprenant : une entrée avec placard, un séjour/cuisine ouvrant sur un balcon de 8,23 m², deux chambres dont une avec placard, une salle d'eau et des WC séparés. Deux places de parking en sous-sol n° 111 et 112. Eau chaude gaz et chauffage électrique. Eau froide, entretien espaces communs et espaces verts, compris dans les provisions sur charges mensuelles donnant lieu à une régularisation annuelle. Les honoraires de location TTC (à la charge du locataire) sont de 505 E. Le montant de rédaction des états des lieux facturé pour 189 E TTC, après réalisation lors de l'entrée dans les lieux. Plus d'infos sur notre site AFEDIM LOCATIONS. Les informations sur les risques auxquels ce bien est exposé sont disponibles sur le site Géorisques :
Retour
Autres photos
Plan
Favoris

Contacter l'agence

CM-CIC GESTION IMMOBILIERE
2 Rond Point des Antons CS70304
44703 ORVAULT

Toutes les annonces immobilières de CM-CIC GESTION IMMOBILIERE
08.09.10.28.80 ou 08.10.00.69.36


Recevoir des annonces similaires

Location à proximité de Saint-cyr-sur-loire