recherche immobilières sur mobile

Location Appartement Tours 2 pièces 43 m2 Indre et loire (37100) - 645 € / mois

location appartement 2 pièces 43 m² région Indre et loire

645 €/mois


Location Appartement 2 pièces TOURS 37100
Annonce Location 2 pièces Appartement Tours 37
Louer Appartement 43 m2 Tours

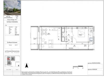
Description

A TOURS, dans la résidence neuve "GREEN LUX", nous vous proposons ce T2 de 43.19m². Il se compose d'une entrée/dégagement, d'une chambre avec salle d'eau, de WC séparés ainsi que d'un séjour de 20.02m² offrant un accès à une terrasse de 6.26m². Une place de parking complète le logement. Chauffage et eau chaude individuel gaz. Entretien parties communes, entretien ascenseur, compris dans les provisions sur charges mensuelles et donnant lieu à une régularisation annuelle. Les honoraires de location de 474 euros TTC (à la charge du locataire) incluent le montant de rédaction des états des lieux facturé pour 129 euros TTC, après réalisation lors de l'entrée dans les lieux. Disponibilité prévisionnelle Décembre 2025. Plus de détails sur notre site AFEDIM. Logement neuf en cours de construction - DPE à venir Les informations sur les risques auxquels ce bien est exposé sont disponibles sur le site Géorisques :
Retour
Autres photos
Plan
Favoris

Contacter l'agence

CM - CIC GESTION IMMOBILIERE
2 rond point des AntonsBP70904
44703 ORVAULT

Toutes les annonces immobilières de CM - CIC GESTION IMMOBILIERE
08.09.10.28.80


Recevoir des annonces similaires

Location à proximité de Tours