recherche immobilières sur mobile

Location Appartement Blanc-mesnil 3 pièces 60 m2 Seine saint denis (93150) - 1170 € / mois

location appartement 3 pièces 60 m² 2 chambres région Seine saint denis

1 170 €/mois


Location Appartement 3 pièces BLANC-MESNIL 93150

Description

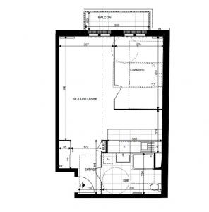
201 - L'ABSOLU : BEAU T3 LUMINEUX AVEC BALCON ET AMBIANCE CONTEMPORAINE, CALME ET SANS VIS A VIS Découvrez ce superbe T3 de 60,83 m² situé au deuxième étage d'une résidence neuve et sécurisée. Cet appartement combine harmonieusement lumière, fonctionnalité et finitions de qualité. Le vaste séjour s'ouvre sur un balcon agréable, sans vis-à-vis, offrant un véritable espace extérieur. La cuisine américaine est entièrement aménagée et équipée (plaques vitrocéramiques, four, hotte, rangements). Le coin nuit comprend deux chambres parquetées, une salle de bain avec baignoire, meuble sous vasque et sèche-serviettes. Le double vitrage et la conception BBC garantissent un bien-être optimal. Une place de stationnement privative complète ce logement. À proximité immédiate du RER B, des commerces, des écoles et des axes A1/A3. Les informations sur les risques auxquels ce bien est exposé sont disponibles sur le site Géorisques : www. georisques. gouv. fr
Retour
Autres photos
Plan
Favoris

Contacter l'agence

CONFIANCE IMMOBILIER MONPLAISIR LOCATION
108, avenue des frères Lumière
69008 LYON

Toutes les annonces immobilières de CONFIANCE IMMOBILIER MONPLAISIR LOCATION
04.72.78.89.87


Recevoir des annonces similaires

Location à proximité de Blanc-mesnil