recherche immobilières sur mobile

Location Appartement Blanc-mesnil 2 pièces 39 m2 Seine saint denis (93150) - 890 € / mois

location appartement 2 pièces 39 m² région Seine saint denis

890 €/mois


Location Appartement 2 pièces BLANC-MESNIL 93150

Description

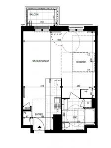
102 - L'ABSOLU : CHARMANT STUDIO AVEC BALCON ET BELLE LUMINOSITÉ Ce charmant T1 de 39,96 m² se situe au premier étage dEURune résidence récente et calme. Son balcon de 3 m² orienté sud offre une belle lumière naturelle toute la journée. La pièce principale, spacieuse et conviviale, est dotée d'une cuisine moderne équipée (four, plaques vitro, hotte, meubles de rangement). La salle d'eau, sobre et élégante, dispose d'un meuble sous vasque et dEURun sèche-serviettes. Le sol en parquet apporte chaleur et élégance à l'ensemble. Parking privatif en sous-sol. Résidence BBC, à proximité immédiate du RER B, des commerces et des axes A1/A3. Le chauffage, l'eau chaude et l'eau froide sont inclus dans les charges. Consommation d'énergie totale entre 208-282EUR par an (prix moyens des énergies indexés au 2021.2022.2023) Les informations sur les risques auxquels ce bien est exposé sont disponibles sur le site Géorisques : www. georisques. gouv. fr
Retour
Autres photos
Plan
Favoris

Contacter l'agence

CONFIANCE IMMOBILIER MONPLAISIR LOCATION
108, avenue des frères Lumière
69008 LYON

Toutes les annonces immobilières de CONFIANCE IMMOBILIER MONPLAISIR LOCATION
04.72.78.89.87


Recevoir des annonces similaires

Location à proximité de Blanc-mesnil