recherche immobilières sur mobile

Location Appartement Tours 3 pièces 65 m2 Indre et loire (37100) - 795 € / mois

location appartement 3 pièces 65 m² 2 chambres région Indre et loire

795 €/mois


Location Appartement 3 pièces TOURS 37100
Annonce Location 3 pièces Appartement Tours 37

Description

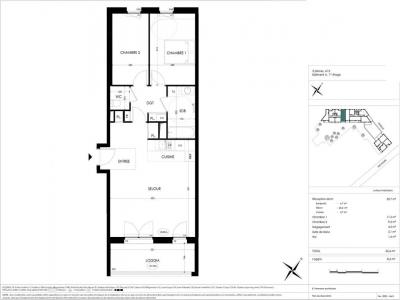
A TOURS, dans la résidence neuve LES IMPRESSIONNISES , nous vous proposons un logement T3 N° A12 de 65.60 m² sis au 1er étage avec ascenseur. Il se compose : d'une entrée avec placard, un séjour/cuisine donnant sur une loggia de 8.60m², un dégagement avec placard desservant deux chambres, un WC et une salle de bains.. Au sous-sol un parking N°15. Eau froide individuelle. (Chauffage et eau chaude en individuels gaz), entretien des parties communes et espaces verts communs, compris dans les provisions sur charges mensuelles et donnant lieu à une régularisation annuelle. Les honoraires de location TTC (à la charge du locataire) incluent le montant de rédaction des états des lieux facturé pour 196 euros TTC, après réalisation lors de l'entrée dans les lieux. Disponibilité prévisionnelle au 17/12/2025. Plus de détails sur notre site AFEDIM. Logement en cours de construction - DPE à venir. Les informations sur les risques auxquels ce bien est exposé sont disponibles sur le site Géorisques :
Retour
Autres photos
Plan
Favoris

Contacter l'agence

CM - CIC GESTION IMMOBILIERE
2 rond point des AntonsBP70904
44703 ORVAULT

Toutes les annonces immobilières de CM - CIC GESTION IMMOBILIERE
08.09.10.28.80


Recevoir des annonces similaires

Location à proximité de Tours