recherche immobilières sur mobile

Location Appartement Montagne 3 pièces 60 m2 Loire atlantique (44620) - 706 € / mois

location appartement 3 pièces 60 m² 2 chambres région Loire atlantique

706 €/mois


Location Appartement 3 pièces MONTAGNE 44620
Annonce Location 3 pièces Appartement Montagne 44
Louer Appartement 60 m2 Montagne
Louer Appartement Montagne Loire atlantique

Description

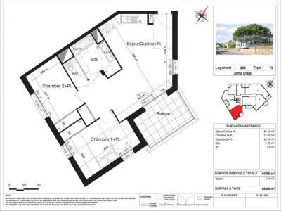
A LA MONTAGNE, dans la résidence BOISEO, nous vous proposons un appartement T3 (N°208) d'une surface de 60,86m² situé au 2ème étage. Il se compose d'un séjour avec cuisine aménagée et équipée (plaques, hotte) et placard de 30,19m² donnant sur un balcon de 7.94m², de deux chambres avec placard de 13.07m² et 10.24m², d'une salle de bains, WC séparé. Stationnement couvert n°7 en RDC avec local vélo. Eau chaude et chauffage produits par chaudière gaz individuelle. Eau individuel. Entretien parties communes, entretien ascenseur et espaces verts communs, compris dans les provisions sur charges mensuelles et donnant lieu à une régularisation annuelle. Les honoraires de location TTC (à la charge du locataire) incluent le montant de rédaction des états des lieux facturé pour 182 euros TTC, après réalisation lors de l'entrée dans les lieux. Pour plus de détails sur ce logement, vous pouvez consulter la fiche descriptive de ce bien, sur notre site internet Afedim. Les informations sur les risques auxquels ce bien est exposé sont disponibles sur le site Géorisques :
Retour
Autres photos
Plan
Favoris

Contacter l'agence

CM-CIC GESTION IMMOBILIERE
2 Rond Point des Antons CS70304
44703 ORVAULT

Toutes les annonces immobilières de CM-CIC GESTION IMMOBILIERE
08.09.10.28.80 ou 08.10.00.69.36


Recevoir des annonces similaires

Location à proximité de Montagne