recherche immobilières sur mobile

Location Appartement Cherbourg 2 pièces 37 m2 Manche (50100) - 543 € / mois

location appartement 2 pièces 37 m² région Manche

543 €/mois


Location Appartement 2 pièces CHERBOURG 50100
Annonce Location 2 pièces Appartement Cherbourg 50

Description

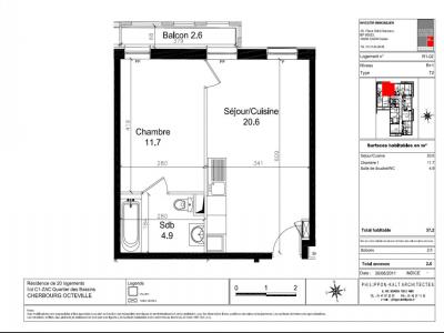
A Cherbourg-Octeville, à proximité du centre-ville et des bassins du port de commerce, dans la Résidence des Bassins, au 1er étage avec ascenseur, nous vous proposons un appartement T2 n°R1-02 (lot 5) de 37.30 m² composé d'un séjour avec coin cuisine, une chambre, une salle d'eau avec WC. Au RDC, une place de parking n° 4 (lot 40). Chauffage et eau chaude individuel gaz. Entretien des parties communes, entretien ascenseur et espaces verts communs, compris dans les provisions sur charges mensuelles et donnant lieu à une régularisation annuelle. Le montant des honoraires (visite, constitution dossier, bail) facturés pour 298E TTC et le montant des honoraires de rédaction de l'état des lieux d'entrée facturés pour 111E TTC directement au locataire, après réalisation, lors de l'entrée dans les lieux. Le règlement des honoraires état des lieux d'entrée est à adresser avec le bail signé à AFEDIM Gestion. Les informations sur les risques auxquels ce bien est exposé sont disponibles sur le site Géorisques :
Retour
Autres photos
Plan
Favoris

Contacter l'agence

CM-CIC GESTION IMMOBILIERE
2 Rond Point des Antons CS70304
44703 ORVAULT

Toutes les annonces immobilières de CM-CIC GESTION IMMOBILIERE
08.09.10.28.80 ou 08.10.00.69.36


Recevoir des annonces similaires

Location à proximité de Cherbourg