recherche immobilières sur mobile

Location Appartement Chapelle-des-fougeretz 3 pièces 68 m2 Ille et vilaine (35520) - 775 € / mois

location appartement 3 pièces 68 m² 2 chambres région Ille et vilaine

775 €/mois


Location Appartement 3 pièces CHAPELLE-DES-FOUGERETZ 35520
Annonce Location 3 pièces Appartement Chapelle-des-fougeretz 35

Description

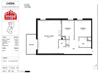
À louer - Appartement T3 de 68 m² : Nous vous proposons un appartement de type 3 d'une superficie de 68 m², situé au 2e étage d'une résidence neuve et sous le régime de la copropriété, avec ascenseur. Ce bien se compose d'une entrée donnant sur un dégagement avec les deux chambres, toutes deux équipées de placards intégrés. De plus il y a un grand séjour avec une cuisine ouvert ouvrant sur un balcon de 7 m².ainsi que de WC indépendants pour davantage de confort. L'appartement bénéficie d'un chauffage individuel au gaz et inclut deux places de stationnement en sous-sol. La résidence met également à disposition un garage à vélos. le loyer se divise en plusieurs parties: -loyer logement: 711.59E -Provisions pour charges: 64.32E -loyer stationnement: 44E TOTAL: 819.91E Les informations sur les risques auxquels ce bien est exposé sont disponibles sur le site Géorisques : www. georisques. gouv. fr
Retour
Autres photos
Plan
Favoris

Contacter l'agence

AIGUILLON CONSTRUCTION
171 Rue De Vern
35200 RENNES

Toutes les annonces immobilières de AIGUILLON CONSTRUCTION
02.99.26.44.44 ou 02.99.26.44.15


Recevoir des annonces similaires

Location à proximité de Chapelle-des-fougeretz