recherche immobilières sur mobile

Location Appartement Marseille-9eme-arrondissement 2 pièces 40 m2 Bouches du Rhone (13009) - 768 € / mois

location appartement 2 pièces 40 m² région Bouches du rhone

768 €/mois


Location Appartement 2 pièces MARSEILLE-9EME-ARRONDISSEMENT 13009
Annonce Location 2 pièces Appartement Marseille-9eme-arrondissement 13
Louer Appartement 40 m2 Marseille-9eme-arrondissement

Description

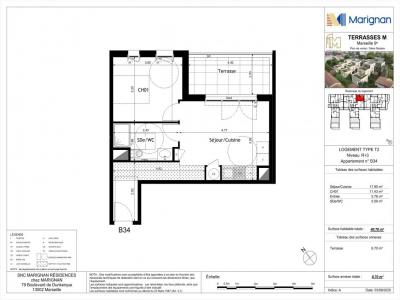
A MARSEILLE, à 15 min à pied du métro DROMEL, dans la résidence TERRASSE M, nous vous proposons un appartement T2 n° B34 de 40.70 m² avec une terrasse de 8.70 m² situé au 3ième étage, avec ascenseur. Il comprend une entrée, un séjour avec cuisine ouverte de 17.90 m² , une chambre de 11.43 m² et une salle d'eau avec WC. Au sous-sol, une place de parking BX35. Eau chaude et chauffage individuels électriques. Entretien parties communes, ascenseur et espaces verts communs, compris dans les provisions sur charges mensuelles et donnant lieu à une régularisation annuelle. Les honoraires de location TTC (à la charge du locataire) incluent le montant de rédaction des états des lieux facturé pour 122 euros TTC, après réalisation lors de l'entrée dans les lieux. Plus de détails sur notre site internet AFEDIM. Les informations sur les risques auxquels ce bien est exposé sont disponibles sur le site Géorisques :
Retour
Autres photos
Plan
Favoris

Contacter l'agence

CM-CIC GESTION IMMOBILIERE
2 Rond Point des Antons CS70304
44703 ORVAULT

Toutes les annonces immobilières de CM-CIC GESTION IMMOBILIERE
08.09.10.28.80 ou 08.10.00.69.36


Recevoir des annonces similaires

Location à proximité de Marseille-9eme-arrondissement