recherche immobilières sur mobile

Location Appartement Nantes 2 pièces 49 m2 Loire atlantique (44200) - 695 € / mois

location appartement 2 pièces 49 m² région Loire atlantique

695 €/mois


Location Appartement 2 pièces NANTES 44200
Annonce Location 2 pièces Appartement Nantes 44

Description

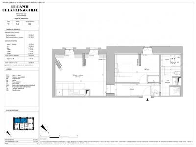
NANTES - MANOIR DE LA PERSAGOTTIERE, RARE, Belle prestation de réhabilitation pour cet appartement T2 comprenant une entrée avec placard, un séjour avec une cuisine ouverte aménagée et équipée (hotte, plaques, four), une chambre, une salle d'eau avec wc et cellier attenant. Cave. Bordé par la Sèvre et longé de pistes cyclables, vous pourrez profiter des promenades et d'un cadre de vie très agréable. Le Manoir de la Persagottière est un véritable lieu d'exception disposant d'un parc, à proximité des transports en commun et des places incontournables de la ville de Nantes. Logement soumis à l'assurance Garantie Loyers Impayés. L'eau est incluse dans les charges locatives « Les informations sur les risques auxquels ce bien est exposé sont disponibles sur le site Géorisques : »
Retour
Autres photos
Plan
Favoris

Contacter l'agence

votre agent immobilier CABINET THIERRY (NANTES 44000)
CABINET THIERRY
du Couedic
44000 NANTES
Nous parlons :

Toutes les annonces immobilières de CABINET THIERRY
02.40.47.99.99 ou 02.40.47.94.43


Recevoir des annonces similaires

Location à proximité de Nantes