recherche immobilières sur mobile

Location Appartement Blanc-mesnil 2 pièces 45 m2 Seine saint denis (93150) - 950 € / mois

location appartement 2 pièces 45 m² région Seine saint denis

950 €/mois


Location Appartement 2 pièces BLANC-MESNIL 93150

Description

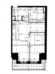
308 L'ABSOLU : T2 LUMINEUX AVEC GRAND BALCON DE 5 M² VUE AGRÉABLE ET LUMINOSITE GARANTIE AVEC SON EXPO SUD Au troisième étage d'une résidence neuve, ce T2 de 45,46 m² bénéficie d'un grand balcon de 5 m² orienté sud, sans vis-à-vis, offrant un véritable espace de détente au quotidien. Le séjour spacieux et lumineux accueille une cuisine moderne aménagée et équipée. Chambre parquetée, salle deau élégante avec meuble vasque et sèche-serviettes. L'ensemble allie confort, praticité et finitions contemporaines. Le bâtiment répond aux dernières normes BBC, garantissant confort thermique et économies d'énergie. Parking privatif en sous-sol. Quartier résidentiel, proche du RER B, des écoles et des commerces. Les informations sur les risques auxquels ce bien est exposé sont disponibles sur le site Géorisques : www. georisques. gouv. fr
Retour
Autres photos
Plan
Favoris

Contacter l'agence

CONFIANCE IMMOBILIER MONPLAISIR LOCATION
108, avenue des frères Lumière
69008 LYON

Toutes les annonces immobilières de CONFIANCE IMMOBILIER MONPLAISIR LOCATION
04.72.78.89.87


Recevoir des annonces similaires

Location à proximité de Blanc-mesnil