recherche immobilières sur mobile

Location Appartement Clermont-ferrand 1 pièce 30 m2 Puy de dome (63000) - 505 € / mois

location appartement 30 m² région Puy de dome

505 €/mois


Location Appartement CLERMONT-FERRAND 63000
Annonce Location Appartement Clermont-ferrand 63
Louer Appartement 30 m2 Clermont-ferrand

Description

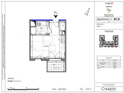
A CLERMONT FERRAND, dans la résidence neuve FABRIKS DE MAI, nous vous proposons un charmant T1 N°B355 de 30.14m² sis au 5e étage avec ascenseur. Il se compose, d'une entrée avec placard, une pièce de vie de 24.67m² avec cuisine ouverte sur séjour et donnant sur un balcon de 4.82m² et une salle de bains avec WC. Chauffage, eau chaude et eau froide collectif. Entretien des parties communes et espaces verts communs, compris dans les provisions sur charges mensuelles et donnant lieu à une régularisation annuelle. Honoraires de location (à la charge du locataire) et le montant de rédaction des états des lieux facturé pour 90 E TTC, après réalisation lors de l'entrée dans les lieux. Disponibilité au 26/12/2025. Plus de détails sur ce logement sur notre site internet AFEDIM. DPE à venir. Logement en cours de construction. Les informations sur les risques auxquels ce bien est exposé sont disponibles sur le site Géorisques :
Retour
Autres photos
Plan
Favoris

Contacter l'agence

CM - CIC GESTION IMMOBILIERE
2 rond point des AntonsBP70904
44703 ORVAULT

Toutes les annonces immobilières de CM - CIC GESTION IMMOBILIERE
08.09.10.28.80


Recevoir des annonces similaires

Location à proximité de Clermont-ferrand