recherche immobilières sur mobile

Location Appartement Clermont-ferrand 1 pièce 26 m2 Puy de dome (63000) - 480 € / mois

location appartement 26 m² région Puy de dome

480 €/mois


Location Appartement CLERMONT-FERRAND 63000
Annonce Location Appartement Clermont-ferrand 63

Description

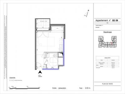
A CLERMONT FERRAND, dans la résidence neuve FABRIKS DE MAI, nous vous proposons un logement T1 N°B359 de 26.35m² sis au 5e étage avec ascenseur. Il se compose d'une pièce de vie de 20.19m² avec cuisine aménagée équipée (hotte, plaque et réfrigérateur) ouverte donnant sur un balcon de 3.62m². Une salle d'eau avec douche, un meuble vasque et WC. Chauffage et eau chaude et eau froide collectif. Entretien parties communes, ascenseur et espaces verts communs, compris dans les provisions sur charges mensuelles et donnant lieu à une régularisation annuelle. Honoraires de location (à la charge du locataire) et le montant de rédaction des états des lieux facturé pour 79 E TTC, après réalisation lors de l'entrée dans les lieux. Disponibilité au 26/12/2025. Plus de détails sur ce logement sur notre site internet AFEDIM. DPE à venir. Logement en cours de construction. Les informations sur les risques auxquels ce bien est exposé sont disponibles sur le site Géorisques :
Retour
Autres photos
Plan
Favoris

Contacter l'agence

CM - CIC GESTION IMMOBILIERE
2 rond point des AntonsBP70904
44703 ORVAULT

Toutes les annonces immobilières de CM - CIC GESTION IMMOBILIERE
08.09.10.28.80


Recevoir des annonces similaires

Location à proximité de Clermont-ferrand