recherche immobilières sur mobile

Location Appartement Chapelle-sur-erdre 2 pièces 39 m2 Loire atlantique (44240) - 569 € / mois

location appartement 2 pièces 39 m² région Loire atlantique

569 €/mois


Location Appartement 2 pièces CHAPELLE-SUR-ERDRE 44240
Annonce Location 2 pièces Appartement Chapelle-sur-erdre 44
Louer Appartement 39 m2 Chapelle-sur-erdre

Description

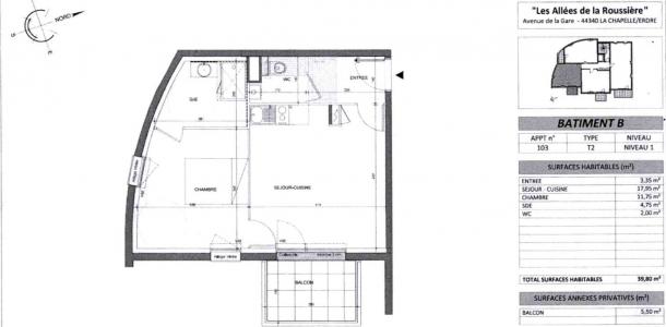
LA CHAPELLE SUR ERDRE - RESIDENCE LES ALLEES DE LA ROUSSIERE Nous vous proposons un appartement T2 d'une superficie de39.80m² situé au 1er étage avec ascenseur, comprenant :Pièce de vie de 18m² avec un espace cuisine donnant sur un balcon exposé EST. Entrée donnant accès au séjour et à un WC séparé. Chambre de 12m² desservant une salle d'eau avec meuble vasque et douche. Chauffage par chaudière à condensation gaz, eau chaude par chaudière. Eau froide individuelle. Entretien parties communes, entretien ascenseur et espaces verts communs donnant lieu à une régularisation annuelle. Les honoraires de location TTC (à la charge du locataire) incluent le montant de rédaction des états des lieux facturé pour 119.00 euros TTC, après réalisation lors de l'entrée dans les lieux. Disponible le ... Pour plus de détails sur ce logement, vous pouvez consulter la fiche descriptive de ce bien, sur votre site internet AFEDIM. Les informations sur les risques auxquels ce bien est exposé sont disponibles sur le site Géorisques :
Retour
Autres photos
Plan
Favoris

Contacter l'agence

CM-CIC GESTION IMMOBILIERE
2 Rond Point des Antons CS70304
44703 ORVAULT

Toutes les annonces immobilières de CM-CIC GESTION IMMOBILIERE
08.09.10.28.80 ou 08.10.00.69.36


Recevoir des annonces similaires

Location à proximité de Chapelle-sur-erdre