recherche immobilières sur mobile

Location Appartement Toulouse 2 pièces 39 m2 Haute garonne (31400) - 708 € / mois

location appartement 2 pièces 39 m² région Haute garonne

708 €/mois


Location Appartement 2 pièces TOULOUSE 31400
Annonce Location 2 pièces Appartement Toulouse 31
Louer Appartement 39 m2 Toulouse
Louer Appartement Toulouse Haute garonne

Description

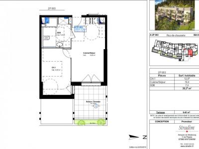
HAUT RANGUEIL. Agréable T2 BBC de 39.30 m2 situé au 1er niveau d'une résidence récente sécurisée. Il se compose d'un séjour avec cuisine ouverte aménagée donnant sur une terrasse, d'une chambre, et d'une salle de bains avec Wc. Un emplacement de parking sous-sol. DPE Classe B EAU CHAUDE + EAU FROIDE + CHAUFFAGE COLLECTIF INCLUS DANS LE CHARGES LOYER MENSUEL HORS CHARGES 553 euros + 155euros DE PROVISIONS SUR CHARGES SOIT 708 euros CHARGES COMPRISES
Retour
Autres photos
Plan
Favoris

Contacter l'agence

votre agent immobilier JCB IMMOBILIER (Toulouse 31000)
JCB IMMOBILIER
Place Saint Sernin
31000 Toulouse

Toutes les annonces immobilières de JCB IMMOBILIER
05.61.62.70.30


Recevoir des annonces similaires

Location à proximité de Toulouse