recherche immobilières sur mobile

Location Appartement Cormelles-le-royal 2 pièces 45 m2 Calvados (14123) - 650 € / mois

location appartement 2 pièces 45 m² région Calvados

650 €/mois


Location Appartement 2 pièces CORMELLES-LE-ROYAL 14123
Annonce Location 2 pièces Appartement Cormelles-le-royal 14

Description

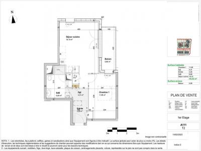
A CORMELLES LE ROYAL, dans la résidence neuve DOMAINE DU CLOS BOISE, nous vous proposons ce T2 de 45.32m² situé au premier étage. Il se compose d'une entrée avec dégagement, d'une salle d'eau avec WC, d'une chambre ainsi que d'un séjour avec cuisine et accès au balcon de 5.88m². Une place de parking complète le lot. Chauffage et eau chaude individuel gaz. Entretien parties communes, compris dans les provisions sur charges mensuelles et donnant lieu à une régularisation annuelle. Les honoraires de location TTC (à la charge du locataire) incluent le montant de rédaction des états des lieux facturé pour 135 euros TTC, après réalisation lors de l'entrée dans les lieux. Disponibilité prévisionnelle octobre 2025 . Plus de détails sur notre site AFEDIM. Les informations sur les risques auxquels ce bien est exposé sont disponibles sur le site Géorisques :
Retour
Autres photos
Plan
Favoris

Contacter l'agence

CM-CIC GESTION IMMOBILIERE
2 Rond Point des Antons CS70304
44703 ORVAULT

Toutes les annonces immobilières de CM-CIC GESTION IMMOBILIERE
08.09.10.28.80 ou 08.10.00.69.36


Recevoir des annonces similaires

Location à proximité de Cormelles-le-royal