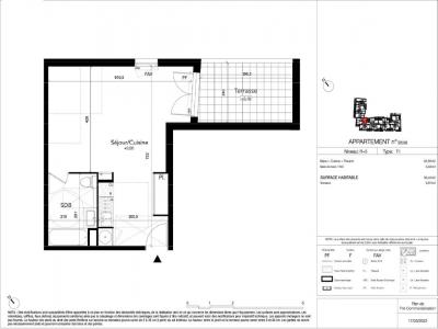
A BEZIERS, dans la résidence neuve "ATHENA", nous vous proposons cet appartement T1 de 38.42m² au 5e étage. Il comprend un séjour/cuisine de 32.59m² avec placard, donnant sur un terrasse de 9.67m² ainsi qu'une salle de bain avec WC. Eau froide et chaude collective. Chauffage individuel électrique. Entretien parties communes, entretien ascenseur, compris dans les provisions sur charges mensuelles et donnant lieu à une régularisation annuelle. Les honoraires de location de 310 euros TTC (à la charge du locataire) incluent le montant de rédaction des états des lieux facturé pour 116 euros TTC, après réalisation lors de l'entrée dans les lieux. Pour plus de détails sur ce logement, vous pouvez consulter la fiche descriptive de ce bien, sur notre site internet AFEDIM. Disponible immédiatement.
Les informations sur les risques auxquels ce bien est exposé sont disponibles sur le site Géorisques :
Annonce Pro
Surface38 m2
Pièce1
SDB1
Séjour32 m2
DPEA
GESA
Référence18775837 - 0067761
Publiée le19/11/2025
Modifiée le18/03/2026
BarèmeVoir le barème des honoraires
Retour
Autres photos
Plan
Favoris
Contacter l'agence
AFEDIM Gestion 2 Rond Point des Antons CS70304 44703 ORVAULT
X FermerUtilisation des cookies En poursuivant votre navigation vous acceptez l'utilisation des cookies ou technologies similaires pour disposer de services et d'offres adaptés à vos centres d'intérêts Pour plus d'informations, gérer ou modifier les paramètres, cliquez ici