recherche immobilières sur mobile

Location Appartement Saint-priest 2 pièces 40 m2 Rhone (69800) - 605 € / mois

location appartement 2 pièces 40 m² région Rhone

605 €/mois


Location Appartement 2 pièces SAINT-PRIEST 69800
Annonce Location 2 pièces Appartement Saint-priest 69

Description

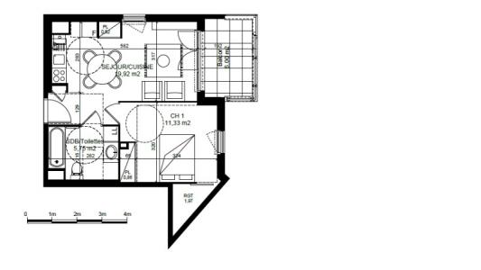
A207 - LE CLAUDEL- ST PRIEST - DANS RESIDENCE RECENTE (2018) A FAIBLE CONSOMMATION ENERGETIQUE T2 AU 2EME ETAGE AVEC BALCON comprenant une pièce de vie avec cuisine US équipée et aménagée (meubles hauts et bas, hotte, plaque de cuisson vitro et four), une grande chambre de 13m2 avec placard et coin rangement fermé, une salle de bains avec baignoire, vasque et WC. Garage individuel fermé en sous sol sécurisé. Vidéophone. Chauffage gaz individuel. ARRET TRAM T2 FACE A LA RESIDENCE. CONSOMMATION TOTALE D'ENERGIE ESTIMEE : 313EUR/AN (prix moyen des énergies indéxées au 15/08/2015) Les informations sur les risques auxquels ce bien est exposé sont disponibles sur le site Géorisques : www. georisques. gouv. fr
Retour
Autres photos
Plan
Favoris

Contacter l'agence

CONFIANCE IMMOBILIER MONPLAISIR LOCATION
108, avenue des frères Lumière
69008 LYON

Toutes les annonces immobilières de CONFIANCE IMMOBILIER MONPLAISIR LOCATION
04.72.78.89.87


Recevoir des annonces similaires

Location à proximité de Saint-priest