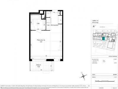
A CHENOVE - Dans la résidence neuve CAP'CANAL, nous vous proposons un appartement T1 de 32.75m² situé au 5ème étage. Il se compose d'une entrée avec placard et kitchenette (plaques de cuisson, hotte, frigo), d'une grande pièce de vie de 23.20m² donnant sur un balcon de 5.15m² et d'une salle de bain avec WC. Cet appartement dispose également d'une place de stationnement N°51 en sous-sol. Chauffage et eau chaude individuel au gaz. Entretien parties communes, ascenseur et espaces verts communs, compris dans les provisions sur charges mensuelles et donnant lieu à une régularisation annuelle. Les honoraires de location TTC (à la charge du locataire) incluent le montant de rédaction des états des lieux facturé pour 98 euros TTC, après réalisation lors de l'entrée dans les lieux. Disponibilité prévue courant octobre 2025. Plus de détails sur notre site internet AFEDIM. Logement neuf en cours de construction - DPE à venir
Les informations sur les risques auxquels ce bien est exposé sont disponibles sur le site Géorisques :
Annonce Pro
Surface32 m2
Pièce1
SDB1
DPEC
GESC
Référence18778166 - 0071462
Publiée le20/11/2025
Modifiée le01/01/2026
BarèmeVoir le barème des honoraires
Retour
Autres photos
Plan
Favoris
Contacter l'agence
CM-CIC GESTION IMMOBILIERE 2 Rond Point des Antons CS70304 44703 ORVAULT
X FermerUtilisation des cookies En poursuivant votre navigation vous acceptez l'utilisation des cookies ou technologies similaires pour disposer de services et d'offres adaptés à vos centres d'intérêts Pour plus d'informations, gérer ou modifier les paramètres, cliquez ici