recherche immobilières sur mobile

Location Appartement Toulon 2 pièces 41 m2 Var (83000) - 733 € / mois

location appartement 2 pièces 41 m² région Var

733 €/mois


Location Appartement 2 pièces TOULON 83000
Annonce Location 2 pièces Appartement Toulon 83

Description

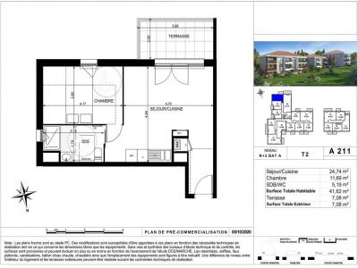
TOULON, ville dynamique à la qualité de vie appréciable, à proximité de la Garde, offre tous les services et commodités facilitant le quotidien. Nous vous proposons dans la résidence neuve DOMAINE DE BELLEVUE un appartement T2 n°A211 de 41.62m². Situé au 2ème étage avec ascenseur, il comprend un séjour-cuisine de 24 m² donnant sur une terrasse de 7.08 m2, une chambre de 11 m2 et une salle d'eau avec un WC. Exposition sud. Deux stationnements à disposition, n°2 et 3. Chauffage et eau chaude individuel gaz, entretien parties communes, ascenseur et espaces verts communs, compris dans les provisions sur charges mensuelles et donnant lieu à une régularisation annuelle. Les honoraires de location sont facturés directement au locataire par le partenaire pour 416 E TTC. Quant aux honoraires de rédaction des états des lieux, ils sont facturés par AFEDIM Gestion pour 124 E TTC, après réalisation, lors de l'entrée dans les lieux. Disponibilité immédiate. Plus de détails sur notre site internet AFEDIM. Les informations sur les risques auxquels ce bien est exposé sont disponibles sur le site Géorisques :
Retour
Autres photos
Plan
Favoris

Contacter l'agence

CM-CIC GESTION IMMOBILIERE
2 Rond Point des Antons CS70304
44703 ORVAULT

Toutes les annonces immobilières de CM-CIC GESTION IMMOBILIERE
08.09.10.28.80 ou 08.10.00.69.36


Recevoir des annonces similaires

Location à proximité de Toulon