recherche immobilières sur mobile

Location Appartement Vertou 2 pièces 40 m2 Loire atlantique (44120) - 608 € / mois

location appartement 2 pièces 40 m² région Loire atlantique

608 €/mois


Location Appartement 2 pièces VERTOU 44120
Annonce Location 2 pièces Appartement Vertou 44

Description

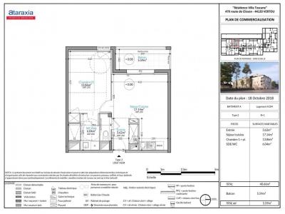
A VERTOU, Route de Clisson, dans la résidence VILLA TOSCANE nous vous proposons un appartement T2 (n°A104) de 40.66m² au 1er étage, comprenant une entrée, un séjour avec cuisine équipée de 17.14m² donnant sur un balcon exposé OUEST de 5.59m², une chambre avec placard aménagé de 13.86m², une salle d'eau avec WC et un parking n°PKA09. Production d'eau chaude et chauffage individuel au gaz. Eau froide, entretien parties communes, entretien ascenseur, compris dans les provisions sur charges mensuelles et donnant lieu à une régularisation annuelle. Disponible le 13/06/2025. Le montant des honoraires de location est facturé directement au locataire par le partenaire pour 406 euros TTC. Quant au montant des honoraires de rédaction des états des lieux, il est facturé par AFEDIM Gestion Immobilière pour 121 euros TTC, après réalisation, lors de l'entrée dans les lieux. Pour plus de détails, consultez la fiche descriptive, sur notre site internet AFEDIM. Les informations sur les risques auxquels ce bien est exposé sont disponibles sur le site Géorisques :
Retour
Autres photos
Plan
Favoris

Contacter l'agence

CM-CIC GESTION IMMOBILIERE
2 Rond Point des Antons CS70304
44703 ORVAULT

Toutes les annonces immobilières de CM-CIC GESTION IMMOBILIERE
08.09.10.28.80 ou 08.10.00.69.36


Recevoir des annonces similaires

Location à proximité de Vertou