recherche immobilières sur mobile

Location Appartement Arbresle 4 pièces 83 m2 Rhone (69210) - 1140 € / mois

location appartement 4 pièces 83 m² 3 chambres région Rhone

1 140 €/mois


Location Appartement 4 pièces ARBRESLE 69210
Annonce Location 4 pièces Appartement Arbresle 69
Louer Appartement 83 m2 Arbresle
Louer Appartement Arbresle Rhone
Louer Appartement Arbresle 1140 euros

Description

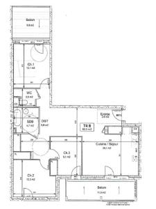
SEMCODA vous propose un T4 dans un immeuble récent proche des transports en communs et des commodités situé au 01 étage avec ascenseur comprenant d'une belle pièce de vie avec cuisine ouverte. Trois chambres dont 2 disposant d'un placard mural. Salle de bain avec baignoire et WC séparé. Le logement dispose également de 2 balcons. Immeuble avec entrée sécurisée, local à vélos et cave. Il y a la possibilité de louer un garage en sous-sol au prix d'environ 60E par mois. Chauffage : Collectif. Gaz Naturel. Loyer : 938 E/mois hors charges et 202 E de provision pour charges (régularisation annuelle), soit 1140 E/mois de loyer charges comprises. . Logement social soumis à condition d'attribution. Sous réserve de l'augmentation légale applicable au 01/01/2026. Logement ouvrant droit à l'aide au logement sous conditions de ressources. Sans frais d'agence, ni frais de dossier. Plans et photos non contractuels. Les informations sur les risques auxquels ce bien est exposé sont disponibles sur le site géorisques : SEMCODA - Bâtir le vivre ensemble.
Retour
Autres photos
Plan
Favoris

Contacter l'agence

SEMCODA LOCATION
50 Rue Du Pavillon
01000 BOURG-EN-BRESSE

Toutes les annonces immobilières de SEMCODA LOCATION
04.78.06.68.23 ou 04.81.51.00.70


Recevoir des annonces similaires

Location à proximité de Arbresle